2020-01-09 13:43
来源:点击:1927精致的两居室更多装修效果图尽在装修乐http://www.zxl.com/
80㎡精致北欧风,生活还可以活成另一个模样
最近听到一个很有意思的事情
原来,除了真人网红外
在房子界,也有一些凭借
过了一层滤镜后的“高颜值”,而风靡一时
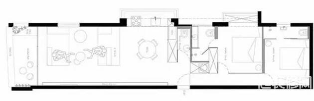
80㎡精致北欧风平面布局

不同于那些精美于滤镜中的网红家
“尚未完工”的精装质感
令这个80㎡的住宅脱颖而出
生活的气息
流转于大白墙与裸露的水泥之间
在残缺中寻找到了,更另类的家居美

客厅的电视墙
被纯白的金属架覆盖
每一个小格子,都是一个个储物空间

开放式的家居模式
厨房被设计在通透的百叶窗前
冰箱等家电
被隐藏在一旁的壁柜之中

L式的厨房设计
中央的剩余面积
用作于家中的餐厅布置

黑、白的餐厅环境
在裸露的水泥墙映衬下
一丝都不觉得粗糙、单调

地板都不用铺
这样的水泥地,也觉得挺舒适

不用传统的玻璃隔断
甚至连个窗帘都没有
客厅与阳台之间的距离
仅仅只用一个挂式的百叶帘

既可以遮挡室外的视线
又可以方便于阳光的穿透
室外的小阳台
给栏杆旁加了一层木隔板
顶部的筒灯
直接射向,小客厅的位置

裸露的红色电线
这是房间走廊里的最重要装饰
2个主卧,2个卫生间
80㎡的北欧风,还可以如此布置

深灰色的主卧墙体
将窗边的空间,也全都利用
嵌入式的壁柜
一半是百叶窗,一半是收纳橱柜

床头的吊灯,也是极为有趣
黄铜的质地,令家居更为精致
一道隐形隔板,遮住了
与卫生间之间的距离

黑白小瓷砖,典型的北欧风设计
小圆镜一旁搭配置物柜
重新梳理了卫浴产品的收纳



另一间的侧卧,以淡淡的粉色为主
相框、灯线、床套
都有着配套统一的粉色系

清爽,洁净的卫生间
这件次卧的配套洗手间
并没有配置,洗浴间的陈设

弹簧镜,打破了
传统的镜面设计

左、右可转向的设计
这样的镜饰,似乎更为节约空间

地板都不铺
但这个极简的80㎡却演绎出了
不一样的精装风
一起装修网上市装修平台70%用户来自口碑介绍
我们承诺: 装修过程0增项
签单后开工前随时全额退款
施工质量不满意砸掉重新装,费用我们承担
以上,就是装修乐小编给大家带来的地板都不铺!打造真正“高颜值”的北欧风全部内容,希望对大家有所帮助!
热门文章
装修公司 更多>>
宝鸡市金铭饰家装饰工程有限公司
2021-07-21
宝鸡市壹凡装饰工程有限公司
2021-07-19
汉中罗兰蒂美装设计工程有限公司
2021-07-19
汉中吉隆装修装饰有限公司
2021-07-19
汉中市九天实业有限公司
2021-07-19
最新文章 更多>>
凛冬之美丨莫干山科技木与自然共舞 诠释艺术之美
2023-11-08
什么牌子的花洒好用且质量好?双十一好物清单都在这里!
2023-11-08
装修旺季别错过,加盟可耐美就要趁现在
2023-11-08
共启新程,巡回发布·杭州站 | 以用户为原点,帅康0烟感集成烹饪中心构筑健康新厨房友好体验
2023-11-08
卧室适合什么风水摆件 卧室风水摆件放哪里比较好呢
2023-11-07
省钱 · 省时 · 省心
今日仅剩100个免费名额
热门标签更多>>
免费报价
免费设计
*声明 :装修乐为您提供专业、透明、准确的装修报价,该项服务绝不产生任何费用,您的隐私将被严格保密!
稍后装修顾问将来电,免费为您提供装修咨询服务
如有疑问,可扫码添加客服微信咨询